產品分類
Guang hui stoves center均化布料車(拋料機)
YZXLC型卸料車
四連桿自動調偏裝置
全自動液壓拉緊裝置
PYTQ型全自動液壓皮帶調正...
SZYL型膠帶自控液壓拉緊裝...
YYTP型全自動液壓調整裝置
電動電液推桿
電動推桿
電液動回轉器(電液頭)
電液動單(雙)側犁式卸料器
SLD(D、S)型緩沖鎖氣漏...
電液動三、四通分料器
DSZ型電液動平板閘門
DSZ型電液動扇形閘門
DEZ型電液動腭式閘門
ZWJ型往復式給料機
裝車閘門(電動簸箕式)
搖臺
阻車器
推車機
滾輪(罐耳)導向裝置
YCZ-56型電液動料流插板...
SZYL型膠帶自控液壓拉緊裝...
YYTP型全自動液壓調整裝置
LST型露天膠帶機脫排水裝置
SZJ型碎渣機
DDHJ-1F型電液動矩形單...
DXV-F(Y)型星形卸灰閥...
電動錐形雙層卸灰閥
電液動錐形層卸灰閥
電液動插板式雙層卸灰閥門
LB(Ⅰ、Ⅱ)-型單、雙層棒...
電動鎖風翻板閥
重錘式鎖風翻板閥
電動百葉閥(圓式、窗式)
電液動漿液閥
DDHJ-1F型電液動矩形單...
電液動蝶閥
電液動球閥
鑄鐵棒
輸送機觀察罩
PFCK破碎機系列組合件
輸送機觀察罩
加寬防雨罩
防雨罩
江蘇精智能液壓機械有限公司
全國咨詢熱線:
傳真:0514-84719609
郵箱:
地址:揚州市高郵湯莊工業區
DSZ型電液動扇形閘門

產品詳情
用途
本系列扇形閘門廣泛應用于建材、冶金、礦山、電力、化工、輕工、糧食等行業,是各類落料系統的卸料控制裝置。
結構特點
本閘門結構簡單,采用優質鋼板焊接而成,采用電液推桿驅動,運行平穩,故障率低,可以快速切斷料流。
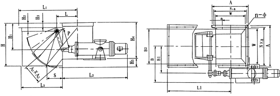
1.DSZ-□A(B)-l型電液動扇形閘門
電液動扇形閘門(A、B型)及外形結構圖

2.DSZ-□A(B)-Ⅱ型電液動扇形閘門
結構特點
本系列電液動動扇形閘門直接將電液推桿固定在閘門本體上,避免了用戶在現場定位的煩惱,安裝簡便。

本系列電液動扇形閘門是根據建材行業作業時的特殊需要,用作水泥熟料庫除塵設備的理想卸料裝置。
本閘門在出料口設置了防塵罩,避免了灰塵飛揚;采用電液推桿作動力源,取代氣缸傳動,節約了工程投資成本;閥體采用階臺結構,減少了料流沖擊;閥體關鍵部位鋪設柵欄結構的耐磨襯板,減少了襯板直接磨損。
適用介質 干燥粉塵
工作溫度 ≤150℃
卸灰量 6-90m3/h

電液動扇形閥門技術參數表(A型)

注:DSZ-20A、DSZ-30A、DSZ-40A 底座向下安裝,DSZ-50A、DSZ-60A、DSZ-70A底座向上安裝。
電液動扇形閥門技術參數表(B型)

注:本閘門(A型)、(B型)可按用戶要求設計制造